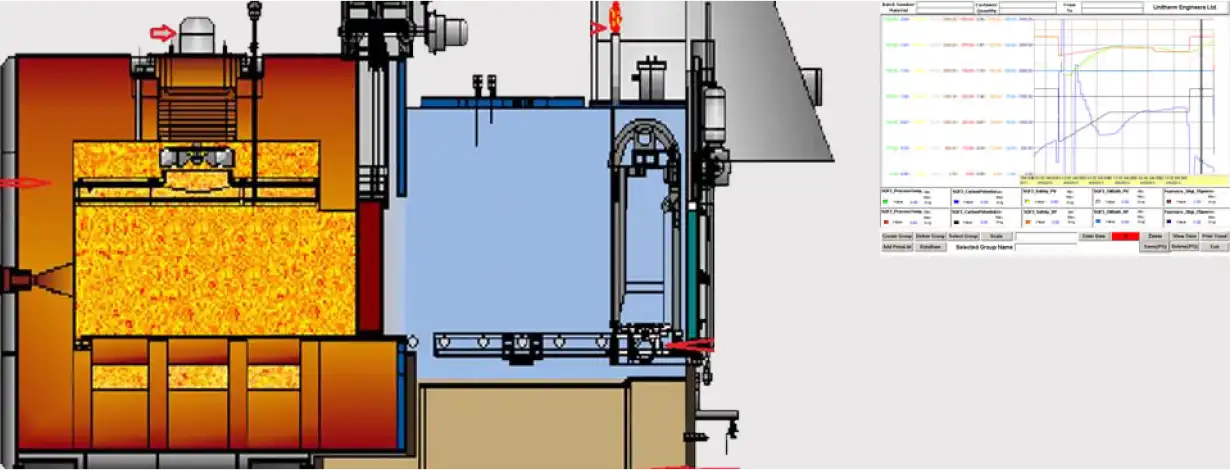
All our heat treatment furnaces are installed with the state-of-the-art industrial control system, SCADA (Supervisory Control And Data Acquisition).
SCADA is the most advanced industrial control system in the world which allows real-time heat treatment cycle monitoring. The process engineers use this software to keep furnace processing parameters within the desired limits.
Apart from legacy controllers Yokogawa, Eurotherm, and Siemens, most of our facilities have started using automatic visual controllers from Stange Elektronik, GmbH, Germany.
